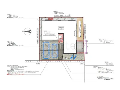
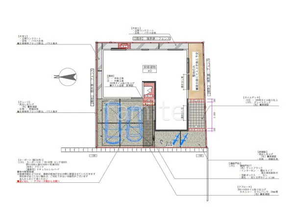
滑りにくい洗出し仕上げが安全な新築シンプル オープン外構
プラン内容 No.3331
※データは見積当時のものです
- 見積参考価格
- 335 万円
- 工事面積
- 69m 2
- 工事種別
- 新築外構
- 車の台数
- 2台
- 登録日
- 2025-08-02
イメージパース・図面





コメント
駐車スペースに2台用カーポート LIXIL カーポートSCを設置し、スタイリッシュなデザインで車をしっかりと保護します。 また駐車スペース全体を洗出し仕上げにすることで、滑りにくくタイヤ痕も目立ちにくい安全なスペースに。 アプローチには大判タイル タカショー セラレバンテを採用し、重厚感のあるエントランスに仕上げました。 門まわりにはスタイリッシュな機能門柱 LIXIL FTを設置し、スマートな雰囲気で利便性を向上しました。 お庭にはタイルデッキを設け、耐久性と清潔感のあるメンテナンスフリーな快適空間を作りました。





